泉二丁目メディカルビル 2階号室
地下鉄高岳駅徒歩約2分、近隣は大通り沿いはオフィスビル、1本中に入ると住宅の多い駅近でありながら閑静なエリアです。ワンフロアワンテナントタイプ。
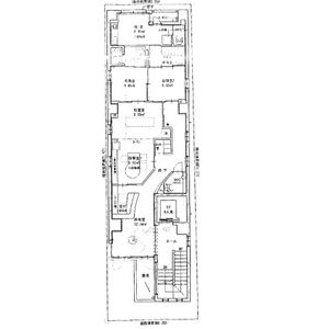
2階は高級感のある美容クリニック内装の居抜き。別途内装譲渡金あります。クリニック以外も相談可能。
| 賃 料 | 409,981円(坪単価:13,000円) |
|---|---|
| 共益費 | 6,600円(坪単価:209円) |
| 貸室面積 | 94.77㎡ ( 28.67坪 ) |
| 敷 金 | 6ヶ月 |
|---|---|
| 礼 金 | |
| 保証金 |
愛知県名古屋市東区泉2丁目23-25
桜通線「高岳」徒歩2分
基本情報
| 物 件 名 | 泉二丁目メディカルビル | ||
|---|---|---|---|
| 物件ID | m9258902 | ||
| 所 在 地 | 愛知県名古屋市東区泉2丁目23-25 | ||
| 交 通 |
桜通線「高岳」徒歩2分 |
||
| 構 造 | 鉄筋コンクリート造 地上4階 | ||
| 所在階 / 空室 | 2階部分 / 2階号室 | 竣 工 日 | 2010年12月 |
地図情報
詳細情報
| 方位 | - - | 現況/入居時期 | 空室/即入 |
|---|---|---|---|
| 他諸経費 | ※ 特記されているものだけを表示していますので、詳しくはお問い合わせの際にご確認ください。 | ||
| その他 |
表示の賃料、共益費等には別途消費税を必要とします 償却:2年以内の退去100%、以降30% |
||
| 設備・条件 | ○ 保証会社利用必須 ○ 居抜き ○ エレベーター(1基) | ||
| 情報更新日 | 2026-03-03 16:19:13 | ||
この物件へのお問い合わせはこちら
お問い合わせの際に「泉二丁目メディカルビル 2階」
もしくは「お部屋ID:m9258902」とお伝えいただくとスムーズです。
株式会社アーリーエステイト
〒461-0001
名古屋市東区泉1-11-2 イトウビル2階
TEL:052-950-6699
FAX:052-950-6698












