今池エフワンビル 5階号室
地下鉄今池駅出入口から徒歩1分、大通り沿い角地で分かりやすいロケーションの貸事務所です。
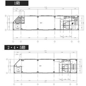
ワンフロアワンオフィスタイプで男女別トイレを新装しました。
| 賃 料 | 266,200円(坪単価:11,000円) |
|---|---|
| 共益費 | 0円 |
| 貸室面積 | 72.72㎡ ( 22.00坪 ) |
| 敷 金 | |
|---|---|
| 礼 金 | |
| 保証金 | 8ヶ月 |
愛知県名古屋市千種区今池4丁目8-1
東山線「今池」徒歩1分
桜通線「今池」徒歩1分
基本情報
| 物 件 名 | 今池エフワンビル | ||
|---|---|---|---|
| 物件ID | m8971938 | ||
| 所 在 地 | 愛知県名古屋市千種区今池4丁目8-1 | ||
| 交 通 |
東山線「今池」徒歩1分 桜通線「今池」徒歩1分 |
||
| 構 造 | 鉄骨造 地上5階 | ||
| 所在階 / 空室 | 5階部分 / 5階号室 | 竣 工 日 | 1997年10月 |
地図情報
詳細情報
| 方位 | - - | 現況/入居時期 | 空室/即入 |
|---|---|---|---|
| 他諸経費 | ※ 特記されているものだけを表示していますので、詳しくはお問い合わせの際にご確認ください。 | ||
| その他 |
表示の賃料、共益費等には別途消費税を必要とします |
||
| 設備・条件 | ○ 保証会社利用必須 ○ エレベーター(1基) | ||
| 情報更新日 | 2025-10-27 15:32:32 | ||
この物件へのお問い合わせはこちら
お問い合わせの際に「今池エフワンビル 5階」
もしくは「お部屋ID:m8971938」とお伝えいただくとスムーズです。
株式会社アーリーエステイト
〒461-0001
名古屋市東区泉1-11-2 イトウビル2階
TEL:052-950-6699
FAX:052-950-6698







