オフィスワンタケハシ 3階号室
リニアによる再開発で注目の名古屋駅西口エリア。
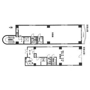
ワンフロアワンテナントタイプ。
| 賃 料 | 209,000円(坪単価:7,812円) |
|---|---|
| 共益費 | 11,000円(坪単価:411円) |
| 貸室面積 | 80.42㎡ ( 24.32坪 ) |
| 敷 金 | 2ヶ月 |
|---|---|
| 礼 金 | |
| 保証金 |
愛知県名古屋市中村区竹橋町13-18
東山線「名古屋」徒歩8分
東海道線「名古屋」徒歩6分
桜通線「太閤通」徒歩5分
基本情報
| 物 件 名 | オフィスワンタケハシ | ||
|---|---|---|---|
| 物件ID | m8960014 | ||
| 所 在 地 | 愛知県名古屋市中村区竹橋町13-18 | ||
| 交 通 |
東山線「名古屋」徒歩8分 東海道線「名古屋」徒歩6分 桜通線「太閤通」徒歩5分 |
||
| 構 造 | 鉄筋コンクリート造 地上6階 | ||
| 所在階 / 空室 | 3階部分 / 3階号室 | 竣 工 日 | 1991年03月 |
地図情報
詳細情報
| 方位 | - - | 現況/入居時期 | 空室/即入 |
|---|---|---|---|
| 他諸経費 | ※ 特記されているものだけを表示していますので、詳しくはお問い合わせの際にご確認ください。 | ||
| その他 |
表示の賃料、共益費等には別途消費税を必要とします 短期解約違約金として1年未満の場合は賃料の2カ月分、1年以上2年未満の場合は賃料の1ヶ月分 |
||
| 設備・条件 | ○ 保証会社利用必須 ○ エレベーター(1基) | ||
| 情報更新日 | 2025-11-06 15:29:07 | ||
この物件へのお問い合わせはこちら
お問い合わせの際に「オフィスワンタケハシ 3階」
もしくは「お部屋ID:m8960014」とお伝えいただくとスムーズです。
株式会社アーリーエステイト
〒461-0001
名古屋市東区泉1-11-2 イトウビル2階
TEL:052-950-6699
FAX:052-950-6698








