テレピアビル 1階1号室
大手オーナー所有の複合商業ビル。1階には飲食店、2階にイベントホール、最上階にも飲食店を備えた著名な物件です。
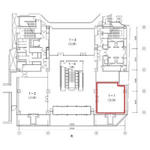
大通りに面した路面店です。現在パン屋営業中。
| 賃 料 | 684,860円(坪単価:15,000円) |
|---|---|
| 共益費 | 0円 |
| 貸室面積 | 93.55㎡ ( 28.30坪 ) |
| 敷 金 | 12ヶ月 |
|---|---|
| 礼 金 | |
| 保証金 |
愛知県名古屋市東区東桜1丁目14-25
東山線「栄」徒歩5分
名城線「栄」徒歩5分
桜通線「高岳」徒歩4分
基本情報
| 物 件 名 | テレピアビル | ||
|---|---|---|---|
| 物件ID | m8899943 | ||
| 所 在 地 | 愛知県名古屋市東区東桜1丁目14-25 | ||
| 交 通 |
東山線「栄」徒歩5分 名城線「栄」徒歩5分 桜通線「高岳」徒歩4分 |
||
| 構 造 | 鉄骨鉄筋コンクリート造 地上15階 地下2階 | ||
| 所在階 / 空室 | 1階部分 / 1階1号室 | 竣 工 日 | 1988年11月 |
地図情報
詳細情報
| 方位 | - - | 現況/入居時期 | 退去予定/相談 |
|---|---|---|---|
| 駐車場 | 機械式35,000円(税別)、平置き自走式50,000円(税別) | ||
| 他諸経費 | ※ 特記されているものだけを表示していますので、詳しくはお問い合わせの際にご確認ください。 | ||
| その他 |
表示の賃料、共益費等には別途消費税を必要とします |
||
| 設備・条件 | |||
| 情報更新日 | 2025-09-30 14:12:37 | ||
この物件へのお問い合わせはこちら
お問い合わせの際に「テレピアビル 1階1」
もしくは「お部屋ID:m8899943」とお伝えいただくとスムーズです。
株式会社アーリーエステイト
〒461-0001
名古屋市東区泉1-11-2 イトウビル2階
TEL:052-950-6699
FAX:052-950-6698










