NORE名駅ビル 401号室
再開発が進みますます発展を続ける納屋橋エリアのハイグレード賃貸事務所。近隣堀川周辺には飲食店など建ち並び人がどんどん増えている印象です。悪く言えばどっちつかずのロケーションですが、よく言えば3駅利用可能な好立地です。
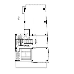
北向き大通り側の貸室です。
| 賃 料 | 要確認 |
|---|---|
| 共益費 | 0円 |
| 貸室面積 | 226.67㎡ ( 68.55坪 ) |
| 敷 金 | 10ヶ月 |
|---|---|
| 礼 金 | |
| 保証金 |
愛知県名古屋市中村区名駅南1丁目3-18
東山線「名古屋」徒歩10分
桜通線「国際センター」徒歩9分
鶴舞線「伏見」徒歩9分
基本情報
| 物 件 名 | NORE名駅ビル | ||
|---|---|---|---|
| 物件ID | m8348496 | ||
| 所 在 地 | 愛知県名古屋市中村区名駅南1丁目3-18 | ||
| 交 通 |
東山線「名古屋」徒歩10分 桜通線「国際センター」徒歩9分 鶴舞線「伏見」徒歩9分 |
||
| 構 造 | 鉄骨造 地上11階 | ||
| 所在階 / 空室 | 4階部分 / 401号室 | 竣 工 日 | 2007年01月 |
地図情報
詳細情報
| 方位 | - - | 現況/入居時期 | 退去予定/相談 |
|---|---|---|---|
| 他諸経費 | ※ 特記されているものだけを表示していますので、詳しくはお問い合わせの際にご確認ください。 | ||
| その他 |
表示の賃料、共益費等には別途消費税を必要とします |
||
| 設備・条件 | ○ エレベーター(2基) | ||
| 情報更新日 | 2026-02-02 15:27:50 | ||
この物件へのお問い合わせはこちら
お問い合わせの際に「NORE名駅ビル 401」
もしくは「お部屋ID:m8348496」とお伝えいただくとスムーズです。
株式会社アーリーエステイト
〒461-0001
名古屋市東区泉1-11-2 イトウビル2階
TEL:052-950-6699
FAX:052-950-6698








