HARVEY TERRACE丸の内 B03号室
【新築】【保証金1か月】【フリーWi-Fi】
当物件エリアでも希少な「新築」テナントビル
丸の内駅徒歩4分の駅近 好立地物件
天井高3mの開放感のある空間
内装工事仕上げ完了後引渡し→完成後即入居可!
テナント・店舗・事務所に最適→新規出店・移転等におすすめ物件!
お気軽にお問合せください。
SECOMカードセキュリティロック
各フロア専用トイレ
フリーレント相談可
| 賃 料 | 210,000円 |
|---|---|
| 共益費 | 44,000円 |
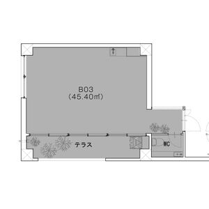
| 貸室面積 | 45.40㎡ |
| 敷 金 | なし |
|---|---|
| 礼 金 | 1ヶ月 |
| 保証金 | 1ヶ月 |
愛知県名古屋市中区丸の内2丁目1510
桜通線「丸の内」徒歩4分
基本情報
| 物 件 名 | HARVEY TERRACE丸の内 | ||
|---|---|---|---|
| 物件ID | 8063873 | ||
| 所 在 地 | 愛知県名古屋市中区丸の内2丁目1510 | ||
| 交 通 |
桜通線「丸の内」徒歩4分 |
||
| 構 造 | 鉄筋コンクリート造 地上5階 | ||
| 所在階 / 空室 | 3階部分 / B03号室 | 竣 工 日 | 2025年12月 |
地図情報
詳細情報
| 方位 | - - | 現況/入居時期 | 建築中/2025年12月中旬 |
|---|---|---|---|
| 他諸経費 |
保険:保険要加入 ※ 特記されているものだけを表示していますので、詳しくはお問い合わせの際にご確認ください。 |
||
| その他 |
表示の賃料、共益費等には別途消費税を必要とします 保険加入:必須 保証会社加入:必須、当社指定 保証金は退去時の原状回復費用にあてるものとする(故意・過失を除く) 契約の際には別途保証委託契約を締結していただきます。 与信状況によって保証金(敷金)額が変動する場合がございます。 |
||
| 設備・条件 | ○ フリーレント ○ 保証会社利用必須 ○ トイレ(水洗) ○ 暖房便座 ○ シャワートイレ ○ エアコン(冷暖房) ○ エレベーター(1基) ○ 電気 ○ ガス(都市ガス) ○ 水道(公営) | ||
| 情報更新日 | 2025-10-28 10:06:11 | ||
この物件へのお問い合わせはこちら
お問い合わせの際に「HARVEY TERRACE丸の内 B03」
もしくは「お部屋ID:8063873」とお伝えいただくとスムーズです。
株式会社アーリーエステイト
〒461-0001
名古屋市東区泉1-11-2 イトウビル2階
TEL:052-950-6699
FAX:052-950-6698















