ライオン中駒ビル 902号室
大津通沿・久屋大通駅徒歩1分超人気エリア(1F・地下店舗)
オフィス街で事務所最適!交通利便の好立地!
1F店舗 セブン・イレブン入店中!諸条件、応相談!
■用途地域/商業地域 ■接道状況/西側幅員約40mに約21.81m、北側幅員約15m
道路に約15.3m接道 ■耐震改修済
| 賃 料 | 278,916円 |
|---|---|
| 共益費 | 81,351円 |
| 貸室面積 | 69.85㎡ |
| 敷 金 | なし |
|---|---|
| 礼 金 | なし |
| 保証金 | 760,680円 |
愛知県名古屋市中区丸の内3丁目19-1
桜通線「久屋大通」徒歩1分
名城線「久屋大通」徒歩1分
東山線「栄」徒歩9分
基本情報
| 物 件 名 | ライオン中駒ビル | ||
|---|---|---|---|
| 物件ID | 5946389 | ||
| 所 在 地 | 愛知県名古屋市中区丸の内3丁目19-1 | ||
| 交 通 |
桜通線「久屋大通」徒歩1分 名城線「久屋大通」徒歩1分 東山線「栄」徒歩9分 |
||
| 構 造 | 鉄骨鉄筋コンクリート造 地上9階 地下1階 | ||
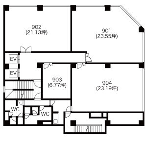
| 所在階 / 空室 | 9階部分 / 902号室 | 竣 工 日 | 1963年06月 |
地図情報
詳細情報
| 方位 | - - | 現況/入居時期 | 空室[審査中]/即入 |
|---|---|---|---|
| 他諸経費 |
保険:保険要加入 ※ 特記されているものだけを表示していますので、詳しくはお問い合わせの際にご確認ください。 |
||
| その他 |
表示の賃料、共益費等には別途消費税を必要とします 保証会社:利用必須 現状貸し 償却分50%の消費税10%は、初期費用決済時にかかります。 |
||
| 設備・条件 | ○ 角部屋 ○ 最上階 ○ トイレ(共同) ○ 男女別トイレ ○ エレベーター(2基) | ||
| 情報更新日 | 2025-10-18 17:35:07 | ||
この物件へのお問い合わせはこちら
お問い合わせの際に「ライオン中駒ビル 902」
もしくは「お部屋ID:5946389」とお伝えいただくとスムーズです。
株式会社アーリーエステイト
〒461-0001
名古屋市東区泉1-11-2 イトウビル2階
TEL:052-950-6699
FAX:052-950-6698




















