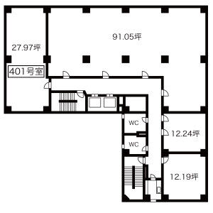
矢場町中駒ビル 401号室
矢場町駅より徒歩3分!大津通り沿いの好立地!店舗に最適な大型ビル!
多目的利用や商業展開を後押しします。
大津通沿・TV等人気店多数・何商可! 諸条件、応相談! 大津通沿い!
■用途地域/商業地域 ■接道状況/西側 幅員30mの公道(大津通)に接面
| 賃 料 | 178,449円 |
|---|---|
| 共益費 | 73,225円 |
| 貸室面積 | 92.47㎡ |
| 敷 金 | |
|---|---|
| 礼 金 | なし |
| 保証金 | 486,678円 |
愛知県名古屋市中区大須4丁目1-71
名城線「矢場町」徒歩3分
基本情報
| 物 件 名 | 矢場町中駒ビル | ||
|---|---|---|---|
| 物件ID | 5946199 | ||
| 所 在 地 | 愛知県名古屋市中区大須4丁目1-71 | ||
| 交 通 |
名城線「矢場町」徒歩3分 |
||
| 構 造 | 鉄筋コンクリート造 地上9階 地下1階 | ||
| 所在階 / 空室 | 4階部分 / 401号室 | 竣 工 日 | 1962年 |
地図情報
詳細情報
| 方位 | - - | 現況/入居時期 | 空室/相談 |
|---|---|---|---|
| 他諸経費 |
保険:保険要加入 ※ 特記されているものだけを表示していますので、詳しくはお問い合わせの際にご確認ください。 |
||
| その他 |
表示の賃料、共益費等には別途消費税を必要とします 保証会社:利用必須 現状貸し 償却分50%の消費税10%は、初期費用決済時にかかります。 |
||
| 設備・条件 | ○ 角部屋 ○ トイレ(共同) ○ 男女別トイレ ○ エレベーター(2基) ○ 電気 ○ ガス(都市ガス) ○ 水道(公営) ○ 排水(公共下水) | ||
| 情報更新日 | 2026-03-09 17:57:44 | ||
この物件へのお問い合わせはこちら
お問い合わせの際に「矢場町中駒ビル 401」
もしくは「お部屋ID:5946199」とお伝えいただくとスムーズです。
株式会社アーリーエステイト
〒461-0001
名古屋市東区泉1-11-2 イトウビル2階
TEL:052-950-6699
FAX:052-950-6698























