アイ高岳ビル 7階A号室
インターネット個別・個別空調・24H機械警備・各階給湯室に給湯器(電気式)設置・新耐震基準
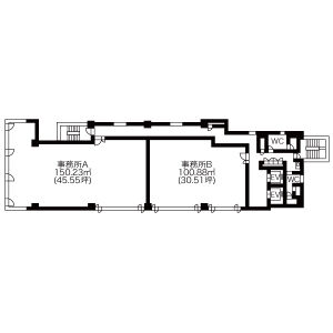
共用部:エレベーターホール、男女トイレ、湯沸室、共用廊下
専用部:OAフロア、LED照明
| 賃 料 | 7,700円 |
|---|---|
| 共益費 | 3,300円/坪 |
| 貸室面積 | 150.23㎡ |
| 敷 金 | 10ヶ月 |
|---|---|
| 礼 金 | |
| 保証金 |
愛知県名古屋市東区東桜1丁目4-13
桜通線「高岳」徒歩2分
名城線「久屋大通」徒歩7分
桜通線「久屋大通」徒歩7分
基本情報
| 物 件 名 | アイ高岳ビル | ||
|---|---|---|---|
| 物件ID | 4452290 | ||
| 所 在 地 | 愛知県名古屋市東区東桜1丁目4-13 | ||
| 交 通 |
桜通線「高岳」徒歩2分 名城線「久屋大通」徒歩7分 桜通線「久屋大通」徒歩7分 |
||
| 構 造 | 鉄骨鉄筋コンクリート造 地上9階 | ||
| 所在階 / 空室 | 7階部分 / 7階A号室 | 竣 工 日 | 1992年01月 |
地図情報
詳細情報
| 方位 | - - | 現況/入居時期 | 空室/相談 |
|---|---|---|---|
| 駐車場 | 機械式立体駐車場 最大長4900mm最大幅1850mmミラー幅1950mm最大高1550mm重量1600kg | ||
| 他諸経費 | ※ 特記されているものだけを表示していますので、詳しくはお問い合わせの際にご確認ください。 | ||
| その他 |
表示の賃料、共益費等には別途消費税を必要とします 共用部リニューアル2020年10月末完了 共用部リニューアル【エレベーターホール、男女トイレ、湯沸室、共用廊下】 専有部【OAフロア、LED照明】 |
||
| 設備・条件 | ○ 角部屋 ○ 保証会社利用可能 ○ トイレ ○ 洗面台(共用) ○ 男女別トイレ ○ エアコン ○ OAフロア ○ 照明 | ||
| 情報更新日 | 2025-12-11 16:48:12 | ||
この物件へのお問い合わせはこちら
お問い合わせの際に「アイ高岳ビル 7階A」
もしくは「お部屋ID:4452290」とお伝えいただくとスムーズです。
株式会社アーリーエステイト
〒461-0001
名古屋市東区泉1-11-2 イトウビル2階
TEL:052-950-6699
FAX:052-950-6698














