Hearty東桜 303号室
無料インターネット設備導入済み!!
☆★栄・新栄・久屋大通・高岳エリアへのアクセスらくらく★☆
フミタビル徒歩5分圏内のご近所には...なんと!
◆コンビニあり!◆
◇スポーツジムあり!◇
◆公園あり!◆
◇穴場な飲食店あり!←本当に美味しいお店が多いです!◇
| 賃 料 | 132,000円 |
|---|---|
| 共益費 | 6,600円 |
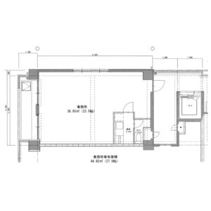
| 貸室面積 | 44.82㎡ |
| 敷 金 | なし |
|---|---|
| 礼 金 | 2ヶ月 |
| 保証金 | なし |
愛知県名古屋市東区東桜2丁目16-41
東山線「新栄町」徒歩3分
桜通線「高岳」徒歩5分
東山線「栄」徒歩10分
基本情報
| 物 件 名 | Hearty東桜 | ||
|---|---|---|---|
| 物件ID | 4920621 | ||
| 所 在 地 | 愛知県名古屋市東区東桜2丁目16-41 | ||
| 交 通 |
東山線「新栄町」徒歩3分 桜通線「高岳」徒歩5分 東山線「栄」徒歩10分 |
||
| 構 造 | 鉄筋コンクリート造 地上8階 | ||
| 所在階 / 空室 | 3階部分 / 303号室 | 竣 工 日 | 1989年03月 |
地図情報
詳細情報
| 方位 | 西向き | 現況/入居時期 | 空室/2025年12月上旬 |
|---|---|---|---|
| 他諸経費 |
保険:保険要加入 住宅保障共済会 2年契約 23,000円(その他内容により金額変更) カギ交換費用:16,500円(契約時) ※ 特記されているものだけを表示していますので、詳しくはお問い合わせの際にご確認ください。 |
||
| その他 |
表示の賃料、共益費等には別途消費税を必要とします |
||
| 設備・条件 | ○ 角部屋 ○ 外国人契約可能 ○ 事務所利用可能 ○ 保証人不要 ○ 保証会社利用可能 ○ 保証会社利用必須 ○ トイレ(水洗) ○ エアコン ○ ネット専用回線 ○ オートロック ○ 宅配BOX ○ エレベーター(1基) ○ 電気 ○ ガス(都市ガス) ○ 水道(公営) ○ 排水(公共下水) ○ バルコニー/ベランダ | ||
| 情報更新日 | 2025-11-29 19:08:07 | ||
この物件へのお問い合わせはこちら
お問い合わせの際に「Hearty東桜 303」
もしくは「お部屋ID:4920621」とお伝えいただくとスムーズです。
株式会社アーリーエステイト
〒461-0001
名古屋市東区泉1-11-2 イトウビル2階
TEL:052-950-6699
FAX:052-950-6698














